Home
Shop
Learning
Services
Resources
Case Studies
Distributor Application Document
Distributor Training
Equipment Overview
Events
Newsletter
Service Advisories
Help
0
0
+1 (330) 595-2022
Sign in
Sales Inquiry
0
0
Home
Shop
Learning
Services
Resources
Case Studies
Distributor Application Document
Distributor Training
Equipment Overview
Events
Newsletter
Service Advisories
Help
+1 (330) 595-2022
Sign in
Sales Inquiry
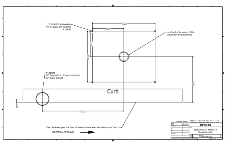
Base Install - Model Eco13
Mount the base according to the diagram:
Download this file as a PDF